Search
Menu

The Circle Bauherren­beratung

Pflichtenheft für den Eventsaal.

Unter dem Namen «The Circle» entsteht eine neue Destination am Flughafen Zürich, die eine Nutzfläche von 180‘000 Quadratmetern bietet.

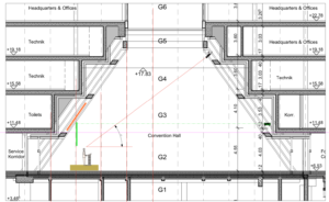
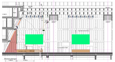
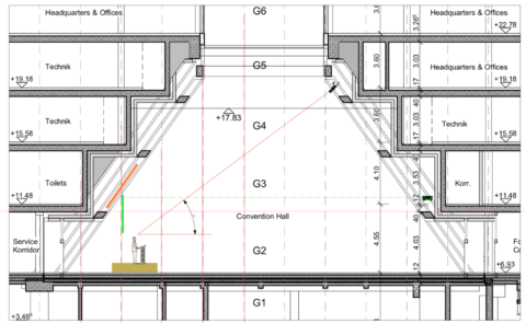
Im Auftrag der Bauherrschaft Flughafen Zürich AG, erarbeiteten wir ein Pflichtenheft für den Bau eines grossen Eventsaals. Darin enthalten sind Empfehlungen und Vorgaben zu den Bereichen Eventarchitektur (Raumambiente, Bühnendesign und -konzept, Zugänge, Notausgänge, Beleuchtung), Eventtechnik (Beschallung, Beleuchtung, Video- und Projektionsanlagen, Rigging und Hängepunkte, Simultan- und Dolmetscheranlage, Elektroinstallationen), Nebenräume (Backstage, Künstlergarderoben, Sanität, Regie, Technikzentrale, Lagerflächen) und Raumarchitektur (Höhe, Bühnensituation, Akustik, Bodenbelastbarkeit, Logistik).

  • Kunde
    Flughafen Zürich AG
  • Jahr
    2014
  • Standort
    Flughafen, Zürich

Kompetenzen

Folgende Leistungen haben wir umgesetzt:

Ich bin da. Auch für dich.

Schon beim ersten Brainstorming stehe ich dir zur Seite, begleite dich, während eine Idee heranwächst, und beantworte deine Fragen bis zum vollendeten Abschluss, der Blüte deines Projekts. Vom ersten Hallo bis zum nächsten Wiedersehen.
  • Dieses Feld dient zur Validierung und sollte nicht verändert werden.

Andy Ryter

Director of Sales

aryter@habegger.ch

Um unsere Webseite optimal zu gestalten und fortlaufend verbessern zu können, verwenden wir Cookies. Durch die weitere Nutzung der Webseite stimmst du der Verwendung von Cookies zu.

Weitere Informationen zu Cookies erhältst du in unserer Datenschutzerklärung